
卷扬减速机
ZJQ135 系列

技术参数
| 汽车卷扬减速机 | ||||||||
| 产品型号 | 能力(T) | 传动比 | 最大输出扭矩 (N·m) | 液压马达 | 制动力矩(N.M) | 最大单绳拉力(N)(第四层) | 长*宽*高 | 重 |
| XJQZ26 | 8吨 | 15.3 21.45 | 3125/3600 | A2F55W2 ZA2F56W6.1Z | 265 | 18000 20000 | 415*410*425 | 122 |
| XJQZ36 | 10 | 26.7 | 4400 | A2F55W2 ZA2F56W6.1Z | 296 | 25000 | 457*410*425 | 135 |
| XJQZ46 | 12 | 26/28.5/30.3/33.1 | 5100/6125 | A2F55W2Z A2F56W6.1Z | 296 | 25000/30000 | 560*480*520 | 145 |
| ZJQ60/ZJQ62 | 16吨 | 29.6/33.1/35.6/39.9 | 7900 | A2F55W2Z A2F56W6.1Z A2F80W2Z | 330 | 38000 | 593*520*520 | 166 |
| ZJQ86 | 20~25吨 | 32.9/42.5 | 11200 | A2F63W2Z2 A6V80…Z A6V107…Z | 523 | 46500 | 668*600*600 | 245 |
| ZJQ95 | 25~30吨 | 34/37.6/44.5 | 13000 | A2F63W2Z2 A6V80…Z A6V107…Z | 540 | 54000 | 668*600*600 | 265 |
| ZJQ125 | 30~50吨 | 39.7/42/45.6/48 | 16800 | A6V80…Z A2F80W2Z A6V107…Z | 540 | 65000 | 668*600*600 | 286 |
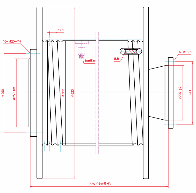
| ZJQ135合 | 775*620*620 | 360 | ||||||
| ZJQ150 | 60~70吨 | 36.8 45.4 50.52 | 18000 | A6V107HDIDFZ2 A2F80W2Z2 A2FE56/61W-VZL A2FE63/61W-VZL A6VE56/61W-VZL A6VE55/63-VZL A6VE63/61W-VZL | 621 | 64000 | 842*642*642 | 390 |
| ZJQ210 | 80~100吨 | 62/67 78.8 79.4 81 101 116.6 | 26000 | A2FE55/61W-VZL A2FE56/61W-VZL A2FE80/61W-VZL A2F80/61WVAL10 A2F107W1Z12 A6VE55/63W-VZL A6VE80/63W-VZL | 710 | 90000 | 510*550*550 | 435 |
| ZJQ220 | 70~80吨 | 49.8/58.8 | 27000 | A6V80…Z A2F80...Z A6V107…Z A2F125...Z | 750 | 85000 | 790*765*765 | 632 |
| ZJQ350 | 100~120 | 86.5/94.8/105.5/119.8/139.9/169.9 | 42500 | A6V107…Z A2F107...Z A6V125…Z A2F125...Z A6V160…Z A2F160...Z A6V200…Z A2F180...Z | 694 | 125000 | 996*740*740 | 800 |
| ZJQ450 | 120~160 | 76.1/84/94.5/109 | 60000 | A6V107…Z A2F107...Z A6V125…Z A2F125...Z A6V160…Z A2F160...Z A6V200…Z A2F180...Z | 988 | 150000 | 1075*920*920 | 1000 |
| ZJQK35 | 8~10 | 25.6 | 4000 | A2F55W2 ZA2F56W6.1Z | 265 | 25000 | 716*420*445 | 245 |
| ZJQK180 快放卷扬减速机 | 50吨 | 44 | 18000 | A2F/A6V107…Z | 710 | 64000 | 742*680*680 | 625 |
| ZJQKZ400 | 80 | 56 | 26000 | A2F/A6V107…Z | 797 | 82000 | 1100*780*980 | 800 |
注:
1.外连卷筒、安装尺寸、马达接口、传动比等可根据需要设计。
2.减速器输入与输出旋转方向相反。
